Ga naar inhoud

Te koop: woonhuis Egelantier 9 7944 NM Meppel

Hup & Fidom Garantiemakelaars Meppel
Neem contact met mij op

Verkocht

€ 579.000,- k.k.

Welkom aan de Egelantier 9! Deze ruime twee-onder-een-kapwoning uit 2008 biedt alles wat je zoekt: vier slaapkamers, een royale woonkamer, een zonnige tuin op het zuiden én een eigen oprit met geïsoleerde garage. De woning is keurig onderhouden, volledig geïsoleerd en voorzien van energielabel A. Hier woon je heerlijk rustig, maar toch vlakbij alle benodigde voorzieningen.

Ben je op zoek naar een instapklare woning met veel wooncomfort en een fijne tuin, kom dan zeker kijken bij de Egelantier 9 in Meppel!

* Bouwjaar: 2008
* Woonoppervlakte: 159 m²
* Inhoud: 586 m³
* Perceeloppervlakte: 292 m²

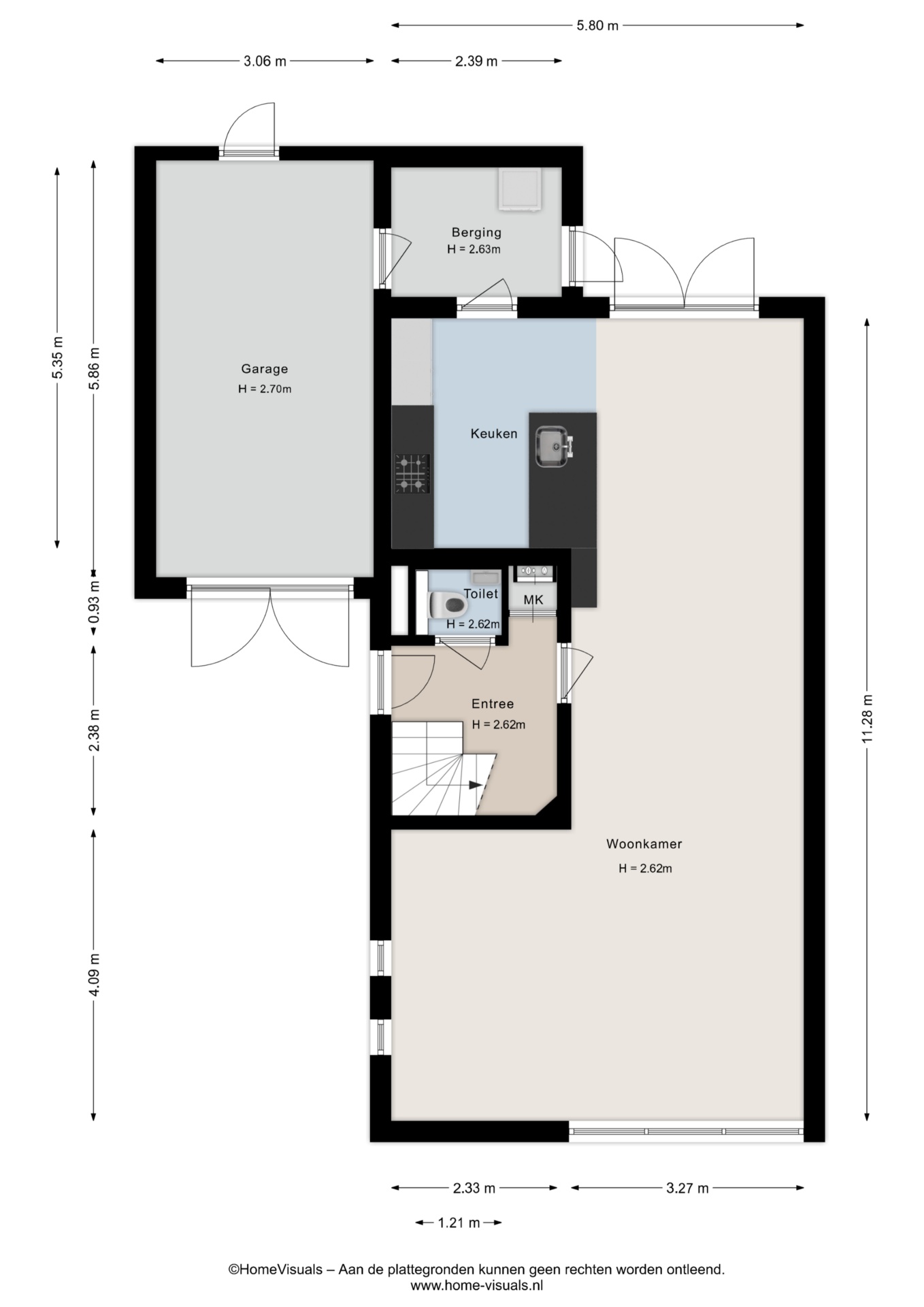
Indeling
Begane grond:
Je komt binnen in een ruime hal met toilet en meterkast. Vanuit de hal stap je de sfeervolle woonkamer in, met grote ramen die zorgen voor een mooie lichtinval. De woonkamer biedt voldoende ruimte voor een gezellige zithoek én een royale eettafel. De halfopen keuken aan de tuinzijde is compleet uitgerust en sluit perfect aan op de praktische bijkeuken. Hier is ook toegang tot de volledig geïsoleerde garage, ideaal voor extra opslag of hobbyruimte.

Eerste verdieping:
Op de eerste verdieping tref je twee ruime slaapkamers en een complete badkamer. De badkamer is voorzien van een ligbad, inloopdouche, toilet en een wastafelmeubel. Alles is netjes afgewerkt en functioneel ingericht.

Tweede verdieping:
Via een vaste trap bereik je de tweede verdieping. Hier vind je een ruime vierde slaapkamer, perfect als werkplek, logeerkamer of hobbyruimte. Daarnaast is er volop bergruimte en een aparte stookruimte aanwezig.

Buitenruimte
De fraai aangelegde achtertuin ligt op het zuiden, waardoor je hier vrijwel de hele dag van de zon kunt genieten. Er is voldoende ruimte voor een loungehoek en een eettafel. Dankzij de ligging op een hoekperceel heb je hier extra veel privacy en buitenruimte. Aan de voorzijde van de woning is parkeergelegenheid op eigen terrein en je beschikt bovendien over een laadpaal voor een elektrische auto.

Bijzonderheden
* Energielabel A
* Volledig geïsoleerd
* 4 slaapkamers
* Zonnige achtertuin op het zuiden
* Garage volledig geïsoleerd en voorzien van elektra
* Eigen oprit met laadpaal
* Mechanische en natuurlijke ventilatie
* Glasvezel aanwezig

Ligging
Deze woning ligt in een rustige en kindvriendelijke woonwijk, dichtbij scholen, winkels en sportfaciliteiten. Binnen enkele minuten bereik je het gezellige centrum van Meppel en het NS-station. Ook uitvalswegen richting Zwolle en Hoogeveen zijn snel bereikbaar. Kortom: een ideale locatie!

Interesse?
Deze woning biedt je de perfecte combinatie van ruimte en comfort. Neem gerust contact met ons op voor een bezichtiging. Wij laten je graag alles zien!

  • 159 m2
  • 292 m2
  • 4

Kenmerken Egelantier 9

Overdracht

Vraagprijs€ 579.000,- k.k.
AanvaardingIn overleg

Oppervlaktes en inhoud

Perceel oppervlakte292 m2
Woonoppervlakte159 m2
Inhoud586 m3

Bouw

SoortEengezinswoning
BouwvormBestaande bouw
Bouwjaar2008
Dak typeZadeldak
IsolatievormenVolledig geïsoleerd
EnergielabelA

Indeling

Aantal verdiepingen3
Aantal kamers5
Aantal slaapkamers4
Aantal badkamers1

Maandlasten

Ligging Egelantier 9

Voorzieningen

Centraal gelegen informatie over de buurt

Aantal inwoners

In de gemeente

33.025

Leeftijd

in percentages van totaal

Huishoudsamenstelling

in percentages van totaal

8%

20% NL

20%

20% NL

72%

20% NL

Vergelijkbaar woningaanbod