€ 409.000,- k.k.
Welkom bij jouw nieuwe thuis aan de Roerdomp 65 te Meppel!! Deze bijzondere HOEKWONING biedt een unieke combinatie van ruimte, comfort en een warme sfeer. Gelegen op een super leuke, vrije locatie in de Oosterboer.
Met maar liefst vijf slaapkamers, een sfeervolle eetkamer en een heerlijke tuin staat dit huis klaar om jouw droomwoning te worden. 
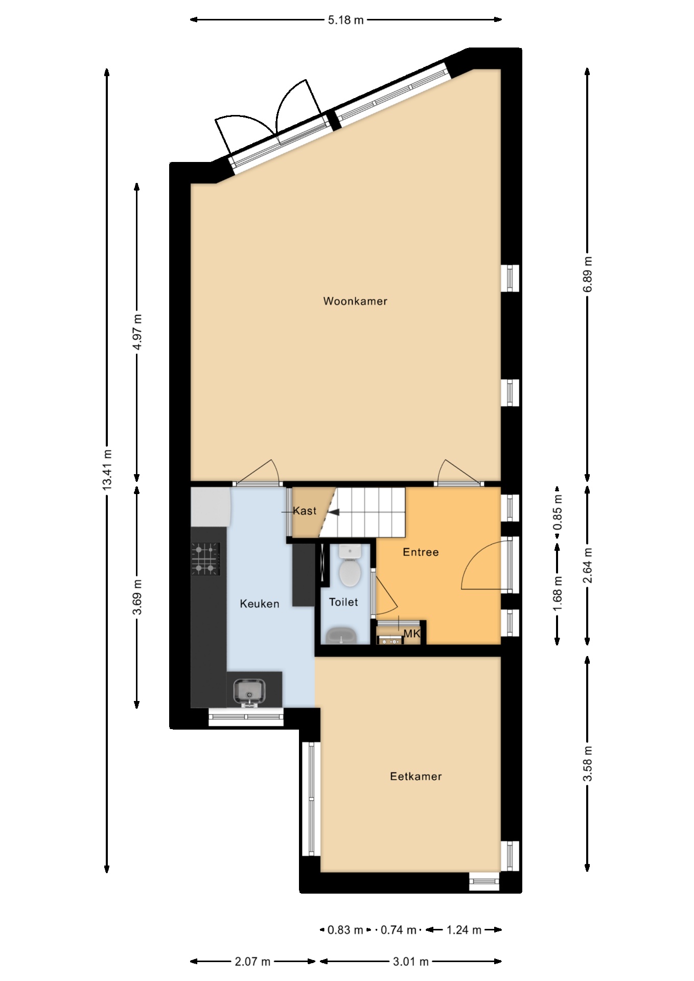
Begane grond:
Bij binnenkomst wordt je ontvangen in de lichte ruime hal met garderobe, meterkast, vaste trap naar verdieping en toegangsdeur naar de woonkamer. De woonkamer voelt heerlijk licht aan met veel natuurlijk licht dankzij de grote ramen aan de tuinkant en de zijramen. Het originele ontwerp zie je hier ook direct terug, kijk eens naar de schuine achterpui! De houten plankenvloer geeft een warme sfeer.
De dichte keuken ligt aan de voorkant van het huis en heeft een fijne voorraadkast onder de trap. Aansluitend aan de keuken vind je de eetkamer, een super gezellige ruimte om met elkaar te eten, spelletjes te doen of te knutselen. 
1e verdieping:
De overloop is ruim en heeft natuurlijk licht, er zijn hier drie ruime slaapkamers en een badkamer. Alle kamers hebben leuke nisjes en een eigen indeling.
In de badkamer is een wastafel, bad, 2e toilet en inloopdouche te vinden. De badkamer is te ventileren met zowel natuurlijke als mechanische ventilatie.
2e verdieping:
Nog een verdieping hoger is de overloop waar plek is voor de wasmachine en bergruimte aanwezig is. Er is hier ook nog een vierde en vijfde slaapkamer gerealiseerd. 
3e verdieping:
Bergzolder, deze is bereikbaar via een vlizotrap.
Tuin en opstal:
De tuin is een ideale plek om te ontspannen en te genieten van het buitenleven. Gelegen op het noordwesten, vangt de tuin de hele dag zonlicht, wat het een heerlijke plek maakt om te vertoeven. De combinatie van groen en tegels zorgt voor een praktische en aantrekkelijke buitenruimte. Hierdoor kun je het hele jaar comfortabel zitten, ongeacht het weer. Of je nu een gezellige avond met vrienden plant of een rustige middag voor jezelf wilt, deze tuin biedt alle mogelijkheden. Verder staat er een schuurtje voor tuingereedschap en fietsen, handig bereikbaar via een achterom.
Kortom, deze woning is zeker een bezichtiging waard!
– Lichte woning!
– zeer ruime woonkamer
– Veel privacy
– Vijf ruime slaapkamers
– Veel gratis parkeerruimte in de omgeving.
Niet alleen veel praktische ruimte, maar ook gewoon een hele leuke woning!
Laat je verrassen door licht en ruimte. Als je, net als wij, enthousiast bent over deze mooie woning aan de Roerdomp 65 in Meppel, aarzel dan niet en neem contact met ons op. Wij plannen graag met u een bezichtiging zodat u deze mooie woning zelf kan ervaren.
- 141 m2
- 232 m2
- 5
Kenmerken Roerdomp 65
Overdracht
| Vraagprijs | € 409.000,- k.k. | 
|---|---|
| Aanvaarding | In overleg | 
Oppervlaktes en inhoud
| Perceel oppervlakte | 232 m2 | 
|---|---|
| Woonoppervlakte | 141 m2 | 
| Inhoud | 471 m3 | 
Bouw
| Soort | Eengezinswoning | 
|---|---|
| Bouwvorm | Bestaande bouw | 
| Bouwjaar | 1996 | 
| Dak type | Plat dak | 
| Isolatievormen | Dakisolatie, Muurisolatie, Vloerisolatie, Dubbelglas, Volledig geïsoleerd | 
| Energielabel | C | 
Indeling
| Aantal verdiepingen | 4 | 
|---|---|
| Aantal kamers | 7 | 
| Aantal slaapkamers | 5 | 
| Aantal badkamers | 1 | 
Maandlasten
Ligging Roerdomp 65
Voorzieningen
- Protestants Christelijke Basisschool de Akker 437 m Engelgaarde 31 MEPPEL
- Viaa-Gereformeerde Hogeschool 22 km Grasdorpstraat 2 ZWOLLE
- Terra 3 km Werkhorst 56 MEPPEL
- Viaa-Gereformeerde Hogeschool 22 km Grasdorpstraat 2 ZWOLLE
- Theologische Universiteit van de Gereformeerde Kerk (Vrijg) in Nederland 26 km Broederweg 15 KAMPEN
Centraal gelegen informatie over de buurt
Aantal inwoners
In de gemeente
33.025
Leeftijd
in percentages van totaal
Huishoudsamenstelling
in percentages van totaal
17%
20% NL
31%
20% NL
51%
20% NL
 
                             
                             
                             
                             
                             
                             
                             
                             
                             
                             
                             
                             
                             
                             
                             
                             
                             
                             
                             
                             
                             
                             
                             
                             
                             
                             
                             
                             
                             
                             
                             
                             
                             
                             
                             
                             
                             
                             
                             
                                 
                                 
                                 
                                 
                                 
                                 
                                 
                                 
                                 
                                 
                                 
                                 
                                 
                                 
                                 
                                 
                                 
                                 
                                 
                                 
                                 
                                 
                                 
                                 
                                 
                                 
                                 
                                 
                                 
                                 
                                 
                                 
                                 
                                 
                                 
                                 
                                 
                                 
                                 
                                 
                                 
                                 
                                 
                                 
                                 
                                 
                                 
                                     
                                     
                                     
                                     
                                     
                                     
                                     
                                     
                                                             
                             
                             
                             
                             
             
             
             
             
            