Ga naar inhoud

Te koop: woonhuis Wilhelminastraat 81 7941 HW Meppel

Hup & Fidom Garantiemakelaars Meppel
Neem contact met mij op

Verkocht o.v.

€ 389.500,- k.k.

Strak afgewerkt wonen met airco, zonnepanelen en carport in hartje Meppel

Aan de rustige Wilhelminastraat 81 woon je comfortabel én energiezuinig in een nette tussenwoning met energielabel A. De woning is volledig geïsoleerd, voorzien van HR++-glas in kunststof kozijnen, heeft 6 zonnepanelen en een airco voor extra wooncomfort. Parkeren doe je op eigen terrein onder de carport; winkels, scholen en het centrum zijn om de hoek.

Pluspunten:
* Energielabel A, volledig geïsoleerd en HR++-glas
* 6 zonnepanelen
* Airco voor koelen en verwarmen
* Vloerverwarming: woonkamer en badkamer
* Badkamer (2022/2023) met ligbad, inloopdouche, dubbel wastafelmeubel en 2e toilet
* Woonkamer met schuifpui naar de tuin
* Keuken (2016) met inbouwapparatuur
* Carport en vrijstaande stenen berging met elektra
* Waterontharder aanwezig

Indeling:
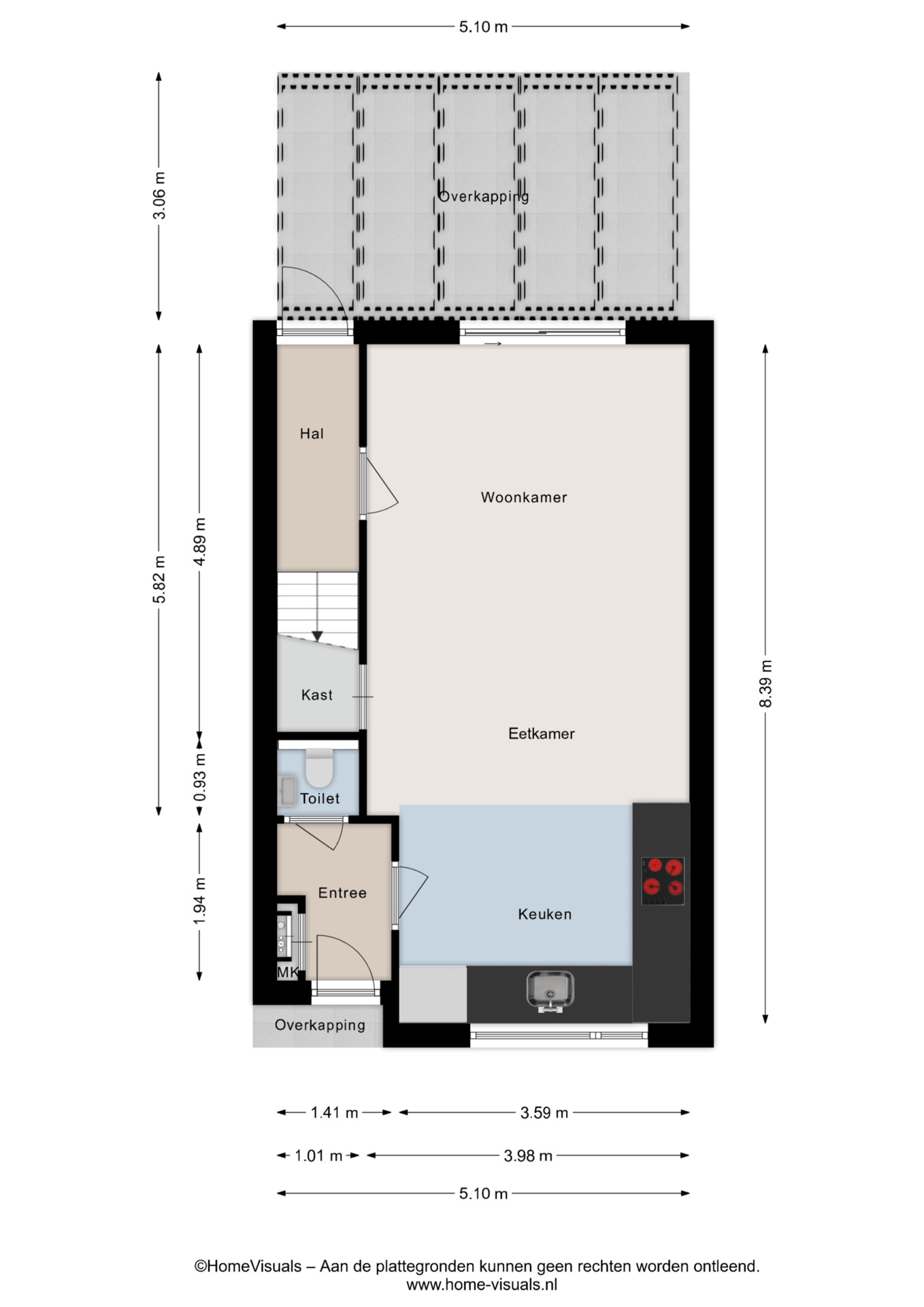
De begane grond is voorzien van een entree/hal met toilet en trapopgang. Tuingerichte woonkamer met vloerverwarming en schuifpui naar de achtertuin. Aan de voorzijde de halfopen keuken (2016) met diverse inbouwapparatuur. Airconditioning aanwezig.

Op de eerste verdieping zijn drie slaapkamers (waarvan de hoofdslaapkamer beschikt over een airco en zonwering) en de moderne badkamer met ligbad, inloopdouche, wastafel en tweede toilet.

Via een vaste trap naar de tweede verdieping is er een mogelijkheid voor een vierde slaapkamer. Op de tweede verdieping is er tevens een vlizo trap waarmee de vliering te bereiken is

Buiten:
Achtertuin op het oosten met achterom en een carport op eigen terrein. Vrijstaande stenen berging met elektra. Ligging aan een rustige weg, op loop-/fietsafstand van het centrum en het station.

Ben je benieuwd of Wilhelminastraat 81 jouw nieuwe thuis kan zijn? We laten het je graag voelen tijdens een bezichtiging. Bel of mail Hup & Fidom Garantiemakelaars Meppel voor een afspraak, we nemen rustig de tijd en denken met je mee, stap voor stap.

  • 113 m2
  • 118 m2
  • 4

Kenmerken Wilhelminastraat 81

Overdracht

Vraagprijs€ 389.500,- k.k.
AanvaardingIn overleg

Oppervlaktes en inhoud

Perceel oppervlakte118 m2
Woonoppervlakte113 m2
Inhoud376 m3

Bouw

SoortEengezinswoning
BouwvormBestaande bouw
Bouwjaar1997
Dak typeZadeldak
IsolatievormenDakisolatie, Muurisolatie, Vloerisolatie, Dubbelglas, Volledig geïsoleerd
EnergielabelA

Indeling

Aantal verdiepingen4
Aantal kamers5
Aantal slaapkamers4
Aantal badkamers1

Maandlasten

Ligging Wilhelminastraat 81

Voorzieningen

Centraal gelegen informatie over de buurt

Aantal inwoners

In de gemeente

33.025

Leeftijd

in percentages van totaal

Huishoudsamenstelling

in percentages van totaal

48%

20% NL

30%

20% NL

21%

20% NL

Vergelijkbaar woningaanbod